Prefabricated Public Toilets, 19CS
Flat Roof Prefab Public Toilet, 19CS
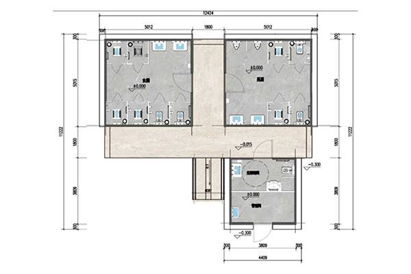
Divided into men's restroom , women's restroom, unisex restroom and utility room, this 19CS flat roof prefabricated public toilet covers an area of 95.06 square meters, including a canopy of 30.3 square meters. The white wall together with the flat roof, glass canopy and wooden fence in our prefab toilet provides a favourable environment for users while sheltering them from the sun and rain.
Configuration of mens' restroom:
2 urinals;
2 water closets;
2 squatting pans;
2 wash basins;
2 mirrors;
aluminum alloy partitions;
Configuration of womens' restroom:
4 squatting pans;
2 water closets;
2 wash basins;
2 mirrors;
aluminum alloy partitions;
Configuration of unisex restroom:
1 water closet;
1 wash basin for adults;
1 baby changing station;
1 mirror;
aluminum alloy partitions;
Configuration of utility room:
1 mop pool
Sloping Roof Prefab Public Toilet, 19CS
Divided into men's restroom, women's restroom, unisex restroom and utility room, this 19CS sloping roof prefabricated public toilet covers an area of 95.06 square meters, including an canopy of 30.3 square meters. The white wall together with the flat roof, glass canopy and wooden fence in our prefab toilet provides a favourable environment for users while sheltering them from the sun and rain.
Configuration of mens' restroom:
2 urinals;
2 squatting pans;
2 water closets;
2 wash basins;
2 mirrors;
aluminum alloy partitions;
Configuration of womens' restroom:
4 squatting pans;
2 water closets;
2 wash basins;
2 mirrors;
aluminum alloy partitions;
Configuration of unisex room:
1 water closet;
1 wash basin for adults;
1 baby changing station;
1 mirror;
aluminum alloy partitions;
Configuration of utility room:
1 mop pool





















