Prefabricated Public Toilets, 8CS
Flat Roof Prefabricated Public Toilets, 8CS
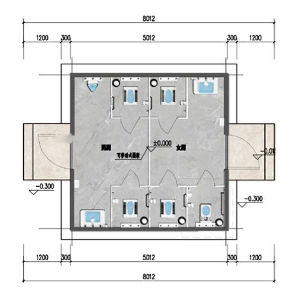
Designed for men's restroom and women's restroom, this 8CS flat roof prefab public toilet covers an area of 29.45 square meters, including a canopy of 4.32 square meters. Our prefab toilet featuring white wall flat roof, glass canopy and wooden fence provides a favourable environment for users while sheltering them from the sun and rain.
Type:
men's restroom and women's restroom
Configuration of men's restroom:
1 urinal;
2 squatting pans;
1 water basin;
1 mirror;
aluminum alloy partitions;
Configuration of women's restroom:
1 water closet;
2 squatting pans;
1 water basin;
1 mirror;
aluminum alloy partitions;
Sloping Roof Prefab Public Toilet, 8CS
Divided into men's restroom and women's restroom, this 8CS sloping roof prefab public toilet covers an area of 29.45 square meters, including a canopy of 4.32 square meters. The white wall together with the flat roof, glass canopy and wooden fence of prefab toilet create a pleasant environment for visitors while sheltering them from the sun and rain.
Type:
men's restoom and women's restroom
Configuration of mens' restroom:
1 urinal;
2 squatting pans;
1 wash basin for adults;
1 mirror;
aluminum alloy partitions;
Configuration of womens' restroom:
1 water closet;
2 squatting pans;
1 wash basin for adults;
1 mirror;
aluminum alloy partitions;

















